4 Beds
2 Baths
Auction 14 Mar 2PM in-room (Unless Sold Prior)
Family Living with Income Potential
Positioned in a sought-after pocket of Pakuranga, 35 Marriott Road presents a fantastic opportunity for those seeking flexible living on a generous 701m² freehold section. Elevated to capture a pleasant outlook and plenty of natural light, this charming weatherboard home offers space, privacy, and multiple living possibilities.
Lovingly maintained and renovated by the current owners during their time here, the home provides added comfort and peace of mind. As part of these improvements, two of the bedrooms have been upgraded with double-glazed windows, enhancing warmth, quietness, and energy efficiency.
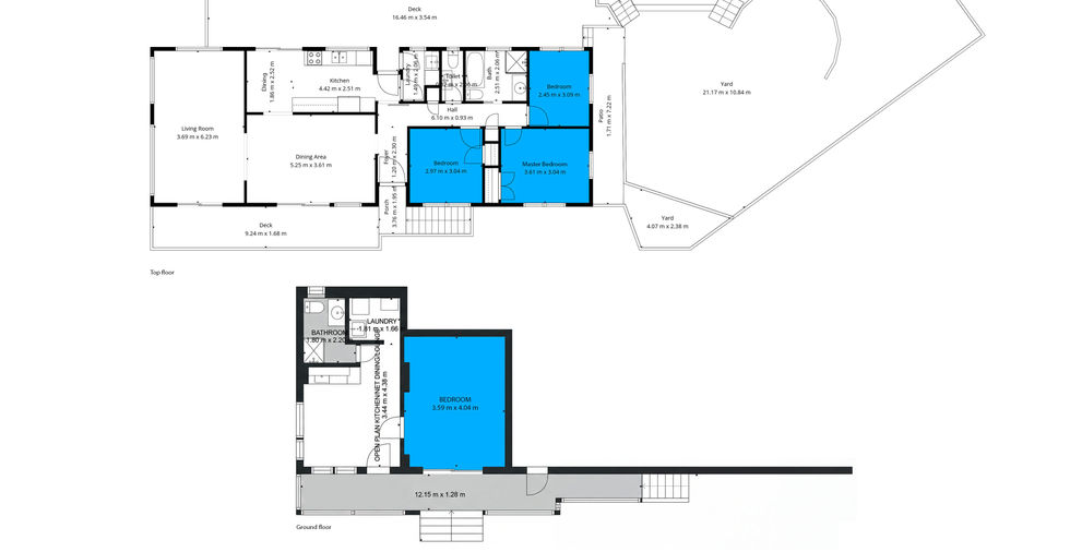
Downstairs offers excellent flexibility with a self-contained area featuring its own bedroom, bathroom, laundry, and kitchenette, along with a separate entrance. Perfect for extended family, teenagers, guests, work-from-home needs, or potential boarder income.
Upstairs, you are welcomed into a spacious living area that flows seamlessly into the kitchen and dining area. The modern, functional kitchen makes entertaining family and friends a pleasure. Three well-sized bedrooms with wardrobes are serviced by a family bathroom, complemented by the convenience of a separate toilet.
Step outside to a sunny outdoor entertaining deck and a generous backyard - ideal for children, pets, or simply enjoying the space this substantial section offers.
Located in a family-friendly neighbourhood, you'll appreciate the convenience of nearby local shops, medical facilities, supermarkets, library, and public transport. Eastern beaches and motorway access are within easy reach, and the property is zoned for Pakuranga Heights School and Pakuranga Intermediate.
The current owners are ready for their next chapter - this is your opportunity to secure a well-maintained, versatile home in a popular location.
All agents are welcome. For conjunctional opportunities, please contact Sherry Khosa.
Viewing Details
21 February, 2026 — 02:00 PM to 02:30 PM
22 February, 2026 — 02:00 PM to 02:30 PM



























